包装迷
登陆 / 注册 搜索

USERCENTER

SEARCHSITE

搜索

查看: 6814|回复: 3

[纸/瓦楞结构] 纸盒包装设计指南——萧多皆

[复制链接]

签到天数: 3

该用户今日未签到

4

回帖

10

声望

96

共享银

包装公大夫

Rank: 26Rank: 26

积分
590
发表于 2020-4-20 19:26:02 | 显示全部楼层 |阅读模式
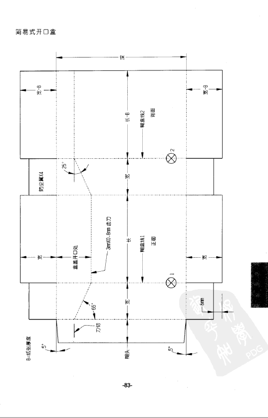
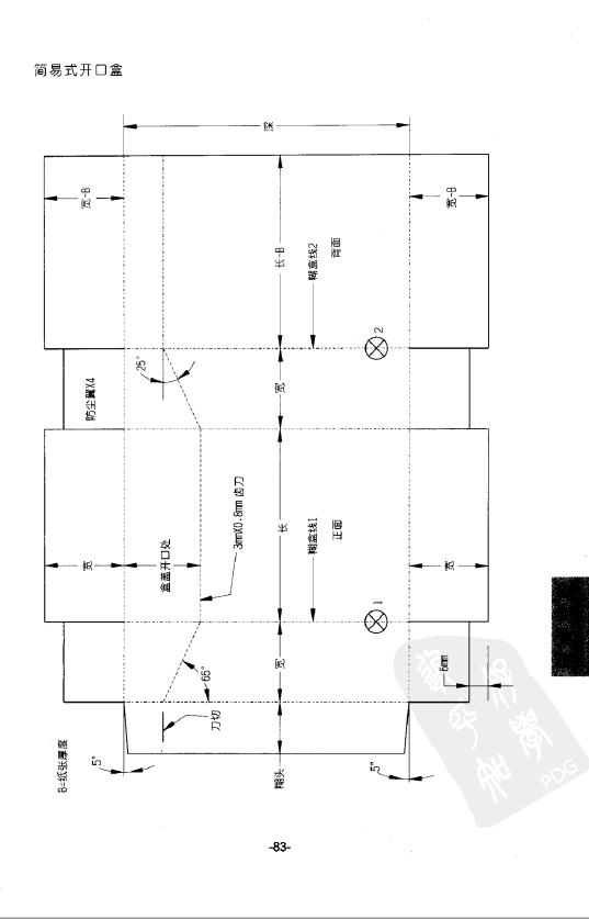
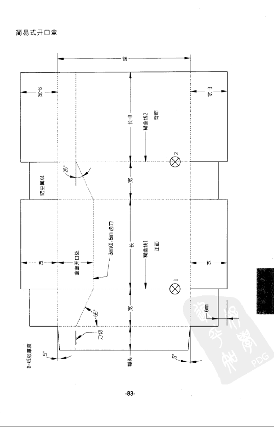
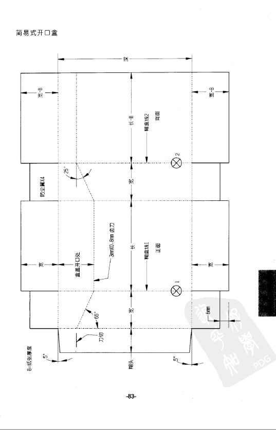
一本包装结构书籍,里边讲述了大多数常用盒型及合型结构图,结构图尺寸也很详细,对研究包装结构有很大帮助
Snipaste_2020-04-20_19-18-59.png Snipaste_2020-04-20_19-19-13.png
Snipaste_2020-04-20_19-19-28.png
Snipaste_2020-04-20_19-20-01.png
Snipaste_2020-04-20_19-19-48.png
Snipaste_2020-04-20_19-20-13.png


纸盒包装设计指南.pdf

34.58 MB, 下载次数: 386, 下载积分: 迷币 -2

售价: 2 共享银  [记录]

包装迷,www.packme.cn--为包装工程师和包装工程专业及包装从业者提供专业的技术讨论平台!(如需添加个性签名请到个人资料里面修改)

签到天数: 225

该用户今日未签到

27

回帖

10

声望

0

共享银

包装公乘

Rank: 32Rank: 32Rank: 32Rank: 32

积分
1424
发表于 2020-9-30 17:04:49 | 显示全部楼层
搜藏收藏
包装迷,www.packme.cn--为包装工程师和包装工程专业及包装从业者提供专业的技术讨论平台!(如需添加个性签名请到个人资料里面修改)

该用户从未签到

96

回帖

10

声望

26

共享银

包装五大夫

Rank: 38Rank: 38Rank: 38Rank: 38Rank: 38Rank: 38

积分
1861
QQ
发表于 2020-10-12 08:50:56 | 显示全部楼层
在十几年前看过这本书,造型结构设计案例讲解不错,不足之处是盒型的细节设计还没有深度优化...
风之琴铃原创著作:《天龙六部》包装工程设计论

该用户从未签到

11

回帖

10

声望

0

共享银

包装公大夫

Rank: 26Rank: 26

积分
542
发表于 2021-4-9 13:54:56 | 显示全部楼层
感谢分享,小白要好好学习一下
包装迷,www.packme.cn--为包装工程师和包装工程专业及包装从业者提供专业的技术讨论平台!(如需添加个性签名请到个人资料里面修改)
您需要登录后才可以回帖 登录 | 立即注册!

本版积分规则

QQ|小黑屋|包装迷丨PACKME ( 【浙ICP备13020736号-1】 )

GMT+8, 2025-12-17 10:42

快速回复 返回列表