包装迷
登陆 / 注册 搜索

USERCENTER

SEARCHSITE

搜索

一款简单的小书柜图

[复制链接]

签到天数: 27

该用户今日未签到

8

回帖

10

声望

433

共享银

包装公乘

Rank: 32Rank: 32Rank: 32Rank: 32

积分
1488
QQ
发表于 2015-8-23 23:36:42 | 显示全部楼层
Great! 谢谢 分享
包装迷,www.packme.cn--为包装工程师和包装工程专业及包装从业者提供专业的技术讨论平台!(如需添加个性签名请到个人资料里面修改)

签到天数: 1346

该用户今日未签到

405

回帖

13

声望

1576

共享银

荣誉VIP

Rank: 42Rank: 42Rank: 42Rank: 42Rank: 42Rank: 42

积分
10227
QQ
发表于 2016-1-5 21:17:03 | 显示全部楼层
多谢楼主分享!太赞了!
包装迷,www.packme.cn--为包装工程师和包装工程专业及包装从业者提供专业的技术讨论平台!(如需添加个性签名请到个人资料里面修改)

签到天数: 15

该用户今日未签到

37

回帖

10

声望

156

共享银

包装官大夫

Rank: 20Rank: 20Rank: 20Rank: 20

积分
402
发表于 2016-1-12 13:55:25 | 显示全部楼层
很棒的设计,我自己也设计过一款,可是很粗糙的FEEL
包装迷,www.packme.cn--为包装工程师和包装工程专业及包装从业者提供专业的技术讨论平台!(如需添加个性签名请到个人资料里面修改)

签到天数: 17

该用户今日未签到

248

回帖

24

声望

3165

共享银

荣誉VIP

Rank: 42Rank: 42Rank: 42Rank: 42Rank: 42Rank: 42

积分
3088
发表于 2016-2-28 09:00:10 | 显示全部楼层
本帖最后由 wolfshawn 于 2016-2-28 10:14 编辑

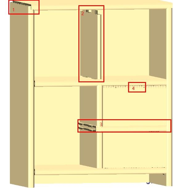
楼主软件中用的是8mm厚的BC坑,请问实际用的是什么纸板、多厚?谢谢另外,用楼主提供的ARD文件组装完成后,跟照片对比,还有几个小疑问:
1处:左侧板和上板搭接处,是否应有让位;
2处:中间隔板尺寸不足?
3处:抽屉之间的隔板尺寸过长?
4处:抽屉应留手指位?

几处疑问.jpg

点评

恩,我刚检查了源文件 。确实有问题...上传的图纸是初稿文件 。不是最终图纸 ....但方法是一样的 !  发表于 2016-3-2 16:24
包装迷,www.packme.cn--为包装工程师和包装工程专业及包装从业者提供专业的技术讨论平台!(如需添加个性签名请到个人资料里面修改)

签到天数: 1

该用户今日未签到

34

回帖

11

声望

410

共享银

包装五大夫

Rank: 38Rank: 38Rank: 38Rank: 38Rank: 38Rank: 38

积分
1935
 楼主| 发表于 2016-3-2 16:20:48 | 显示全部楼层
wolfshawn 发表于 2016-2-28 09:00
楼主软件中用的是8mm厚的BC坑,请问实际用的是什么纸板、多厚?谢谢另外,用楼主提供的ARD文件组 ...

实际用的也是BC楞纸板  ,我提供文件有误(我去检查一下)
包装迷,www.packme.cn--为包装工程师和包装工程专业及包装从业者提供专业的技术讨论平台!(如需添加个性签名请到个人资料里面修改)

签到天数: 573

该用户今日未签到

114

回帖

10

声望

24

共享银

包装左庶长

Rank: 42Rank: 42Rank: 42Rank: 42Rank: 42Rank: 42

积分
2892
发表于 2016-6-26 01:23:11 | 显示全部楼层
不错的说,就是我想用雅图拼出来有点头疼,零件太多了
包装迷,www.packme.cn--为包装工程师和包装工程专业及包装从业者提供专业的技术讨论平台!(如需添加个性签名请到个人资料里面修改)

签到天数: 3

该用户今日未签到

13

回帖

10

声望

5

共享银

包装公大夫

Rank: 26Rank: 26

积分
662
发表于 2016-6-28 15:32:41 | 显示全部楼层
做这些不知道用哪种瓦楞最好
包装迷,www.packme.cn--为包装工程师和包装工程专业及包装从业者提供专业的技术讨论平台!(如需添加个性签名请到个人资料里面修改)

该用户从未签到

185

回帖

10

声望

8

共享银

包装公乘

Rank: 32Rank: 32Rank: 32Rank: 32

积分
1172
QQ
发表于 2016-12-31 15:49:47 | 显示全部楼层
简单而且精致。不错!
垃圾制造者。
您需要登录后才可以回帖 登录 | 立即注册!

本版积分规则

QQ|小黑屋|包装迷丨PACKME ( 【浙ICP备13020736号-1】 )

GMT+8, 2025-11-5 07:38

快速回复 返回列表