包装迷
登陆 / 注册 搜索

USERCENTER

SEARCHSITE

搜索

查看: 5911|回复: 10

[已结案] 求这款音箱异型箱子刀模线

[复制链接]

签到天数: 77

该用户今日未签到

21

回帖

10

声望

439

共享银

包装官大夫

Rank: 20Rank: 20Rank: 20Rank: 20

积分
446
发表于 2022-8-19 13:21:42 | 显示全部楼层 |阅读模式
10共享银

微信图片_20220819132003.png
求这款音箱异型箱子刀模线。

最佳答案

查看完整内容

补充一张刀模线的图片。
包装迷,www.packme.cn--为包装工程师和包装工程专业及包装从业者提供专业的技术讨论平台!(如需添加个性签名请到个人资料里面修改)

签到天数: 458

该用户今日未签到

339

回帖

10

声望

97

共享银

包装左庶长

Rank: 42Rank: 42Rank: 42Rank: 42Rank: 42Rank: 42

积分
2947
发表于 2022-8-19 13:21:43 | 显示全部楼层
陈清安 发表于 2022-12-30 19:37
BE瓦楞,2个一装放入外箱,可以提升装柜数量,降低运输成本。

音箱异型箱子刀模线.png

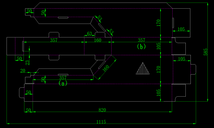
补充一张刀模线的图片。

包装迷,www.packme.cn--为包装工程师和包装工程专业及包装从业者提供专业的技术讨论平台!(如需添加个性签名请到个人资料里面修改)

签到天数: 1

该用户今日未签到

17

回帖

10

声望

21

共享银

包装官大夫

Rank: 20Rank: 20Rank: 20Rank: 20

积分
289
发表于 2022-8-20 16:44:33 | 显示全部楼层
本帖最后由 lqz 于 2022-8-20 16:45 编辑

随便用了个尺寸,画了一下刀模图,应该是这样子的,底部直接做成封箱式的,这会节省纸用量。C:\Users\apple\Desktop
企业微信截图_16609849957826.png
包装迷,www.packme.cn--为包装工程师和包装工程专业及包装从业者提供专业的技术讨论平台!(如需添加个性签名请到个人资料里面修改)

签到天数: 3

该用户今日未签到

191

回帖

10

声望

8

共享银

包装公大夫

Rank: 26Rank: 26

积分
677
发表于 2022-8-26 15:21:47 | 显示全部楼层
很棒,脑洞大开!
包装迷,www.packme.cn--为包装工程师和包装工程专业及包装从业者提供专业的技术讨论平台!(如需添加个性签名请到个人资料里面修改)

签到天数: 2650

今日第35个签到

4249

回帖

12

声望

1142

共享银

管理员

Rank: 72Rank: 72Rank: 72Rank: 72Rank: 72Rank: 72Rank: 72Rank: 72

积分
27656
发表于 2022-8-26 16:21:43 | 显示全部楼层
图纸不整上了来?
包装迷,www.packme.cn--为包装工程师和包装工程专业及包装从业者提供专业的技术讨论平台!(如需添加个性签名请到个人资料里面修改)

签到天数: 112

该用户今日未签到

129

回帖

12

声望

594

共享银

VIP会员

Rank: 43Rank: 43Rank: 43Rank: 43Rank: 43Rank: 43Rank: 43

积分
4233
发表于 2022-12-21 22:33:06 | 显示全部楼层
我发过标准图纸,看我的资料
包装迷,www.packme.cn--为包装工程师和包装工程专业及包装从业者提供专业的技术讨论平台!(如需添加个性签名请到个人资料里面修改)

签到天数: 3

该用户今日未签到

191

回帖

10

声望

8

共享银

包装公大夫

Rank: 26Rank: 26

积分
677
发表于 2022-12-28 16:17:16 | 显示全部楼层
请问这个异型箱子纸是什么材质搭配的? 这音响有多重呢?  请问有5斤重的音箱要用啥材质呢?
包装迷,www.packme.cn--为包装工程师和包装工程专业及包装从业者提供专业的技术讨论平台!(如需添加个性签名请到个人资料里面修改)

签到天数: 458

该用户今日未签到

339

回帖

10

声望

97

共享银

包装左庶长

Rank: 42Rank: 42Rank: 42Rank: 42Rank: 42Rank: 42

积分
2947
发表于 2022-12-30 19:37:05 | 显示全部楼层
BE瓦楞,2个一装放入外箱,可以提升装柜数量,降低运输成本。

音箱异型箱子刀模线.dwg

245.94 KB, 下载次数: 8

售价: 1 共享银  [记录]

包装迷,www.packme.cn--为包装工程师和包装工程专业及包装从业者提供专业的技术讨论平台!(如需添加个性签名请到个人资料里面修改)

签到天数: 26

该用户今日未签到

29

回帖

10

声望

91

共享银

包装官大夫

Rank: 20Rank: 20Rank: 20Rank: 20

积分
308
发表于 2023-1-5 11:00:48 | 显示全部楼层
不错的设计,点赞
包装迷,www.packme.cn--为包装工程师和包装工程专业及包装从业者提供专业的技术讨论平台!(如需添加个性签名请到个人资料里面修改)

签到天数: 191

今日第40个签到

114

回帖

10

声望

473

共享银

包装公乘

Rank: 32Rank: 32Rank: 32Rank: 32

积分
1265
发表于 2023-2-21 18:55:45 | 显示全部楼层
陈清安 发表于 2022-12-30 19:37
BE瓦楞,2个一装放入外箱,可以提升装柜数量,降低运输成本。

高手!厉害!
包装迷,www.packme.cn--为包装工程师和包装工程专业及包装从业者提供专业的技术讨论平台!(如需添加个性签名请到个人资料里面修改)
您需要登录后才可以回帖 登录 | 立即注册!

本版积分规则

QQ|小黑屋|包装迷丨PACKME ( 【浙ICP备13020736号-1】 )

GMT+8, 2025-12-22 15:56

快速回复 返回列表