包装迷
登陆 / 注册 搜索

USERCENTER

SEARCHSITE

搜索

查看: 4255|回复: 0

[运输包装设计] 包装运输标志印刷

[复制链接]

签到天数: 27

该用户今日未签到

14

回帖

10

声望

107

共享银

包装大夫

Rank: 14Rank: 14Rank: 14Rank: 14Rank: 14Rank: 14

积分
198
发表于 2021-1-25 15:22:40 | 显示全部楼层 |阅读模式
生活不易换点银子
---------------------
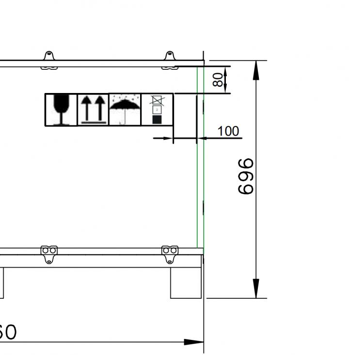
主要是运输包装的图标,带边框不带边框的自取。纸箱木箱都能用,应该

----------------------
初次发帖,如有失误,多多包涵

内含图标

内含图标

像这样子

像这样子

印刷标识.rar

12.57 MB, 下载次数: 30, 下载积分: 迷币 -2

售价: 1 共享银  [记录]

评分

参与人数 1共享银 +2 迷币 +10 收起 理由
Packme + 2 + 10 骚年,我看好你!

查看全部评分

包装迷,www.packme.cn--为包装工程师和包装工程专业及包装从业者提供专业的技术讨论平台!(如需添加个性签名请到个人资料里面修改)
您需要登录后才可以回帖 登录 | 立即注册!

本版积分规则

QQ|小黑屋|包装迷丨PACKME ( 【浙ICP备13020736号-1】 )

GMT+8, 2026-1-30 13:00

快速回复 返回列表