包装迷
登陆 / 注册 搜索

USERCENTER

SEARCHSITE

搜索

查看: 4517|回复: 2

[木制品结构] 葡萄牙的花格木箱图纸

[复制链接]

签到天数: 965

该用户今日未签到

201

回帖

12

声望

506

共享银

包装右更

Rank: 72Rank: 72Rank: 72Rank: 72Rank: 72Rank: 72Rank: 72Rank: 72

积分
7185
QQ
发表于 2018-11-5 14:05:29 | 显示全部楼层 |阅读模式
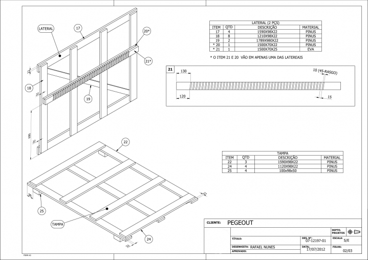
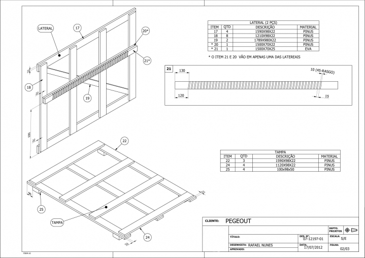
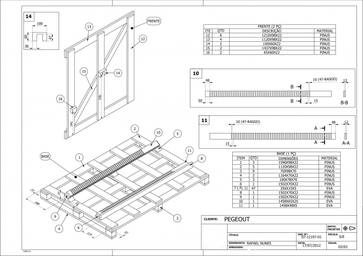
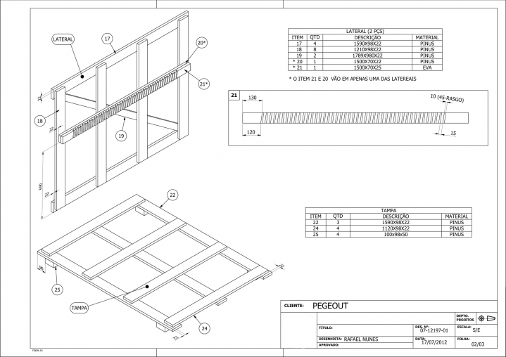
葡萄牙的花格木箱图纸
Packaging pg3.jpg
Packaging pg2.jpg
Packaging pg 1.jpg
包装迷,www.packme.cn--为包装工程师和包装工程专业及包装从业者提供专业的技术讨论平台!(如需添加个性签名请到个人资料里面修改)

该用户从未签到

185

回帖

10

声望

2

共享银

包装公乘

Rank: 32Rank: 32Rank: 32Rank: 32

积分
1174
QQ
发表于 2018-11-6 08:31:14 | 显示全部楼层
马哥这个一定是装前门玻璃的纸箱了。
垃圾制造者。

该用户从未签到

388

回帖

10

声望

15

共享银

包装左庶长

Rank: 42Rank: 42Rank: 42Rank: 42Rank: 42Rank: 42

积分
2471

活跃会员

发表于 2018-11-6 09:58:55 | 显示全部楼层
源文件可以分享一下吗,PDF也行
To be a senior packaging engineer
您需要登录后才可以回帖 登录 | 立即注册!

本版积分规则

QQ|小黑屋|包装迷丨PACKME ( 【浙ICP备13020736号-1】 )

GMT+8, 2026-3-21 21:03

快速回复 返回列表