包装迷
登陆 / 注册 搜索

USERCENTER

SEARCHSITE

搜索

查看: 2954|回复: 2

[纸/瓦楞结构] 关于L型玻璃的包装结构设计

[复制链接]

签到天数: 22

该用户今日未签到

77

回帖

10

声望

39

共享银

包装大夫

Rank: 14Rank: 14Rank: 14Rank: 14Rank: 14Rank: 14

积分
183
发表于 2016-11-16 08:29:42 | 显示全部楼层 |阅读模式
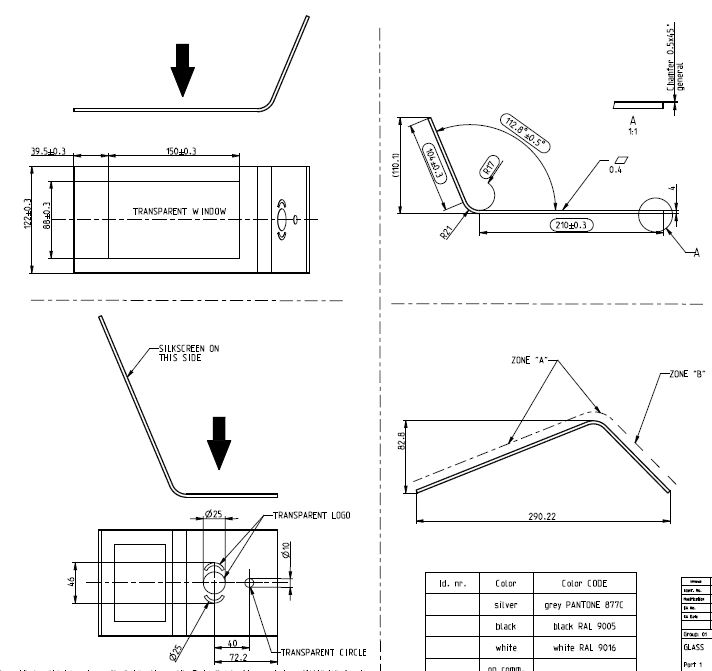
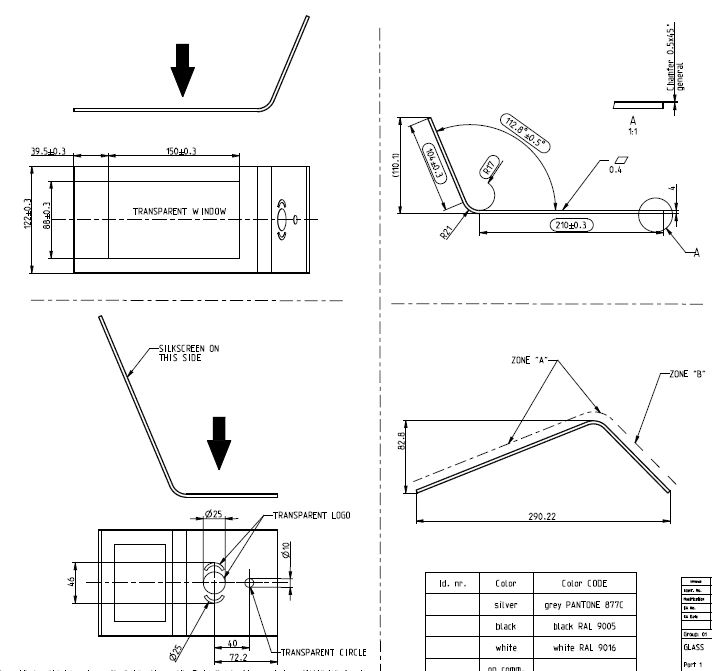
附件的一款玻璃,请各位大神帮忙提供一个好的包装方案,谢谢~
玻璃图纸.JPG
包装迷,www.packme.cn--为包装工程师和包装工程专业及包装从业者提供专业的技术讨论平台!(如需添加个性签名请到个人资料里面修改)

签到天数: 2709

该用户今日未签到

4302

回帖

12

声望

1869

共享银

管理员

Rank: 72Rank: 72Rank: 72Rank: 72Rank: 72Rank: 72Rank: 72Rank: 72

积分
28216
发表于 2016-11-21 10:40:22 | 显示全部楼层
我的建议:
1 不可能一个纸箱装一个,L型玻璃叠起来,中间用一张E瓦楞隔开;
2 L型空的地方,用纸缓冲做一个三角形进行缓冲固定
3 贴着产品做一个围板,在围板和外箱之间具体采用纸缓冲
4 一定要通过测试
完毕。
包装迷,www.packme.cn--为包装工程师和包装工程专业及包装从业者提供专业的技术讨论平台!(如需添加个性签名请到个人资料里面修改)

1位会员因此贴向贴主表示感谢!

签到天数: 22

该用户今日未签到

77

回帖

10

声望

39

共享银

包装大夫

Rank: 14Rank: 14Rank: 14Rank: 14Rank: 14Rank: 14

积分
183
 楼主| 发表于 2016-11-21 11:16:35 | 显示全部楼层
谢谢迷哥指点  
包装迷,www.packme.cn--为包装工程师和包装工程专业及包装从业者提供专业的技术讨论平台!(如需添加个性签名请到个人资料里面修改)
您需要登录后才可以回帖 登录 | 立即注册!

本版积分规则

QQ|小黑屋|包装迷丨PACKME ( 【浙ICP备13020736号-1】 )

GMT+8, 2026-3-21 20:54

快速回复 返回列表