包装迷
登陆 / 注册 搜索

USERCENTER

SEARCHSITE

搜索

查看: 2239|回复: 2

[造型设计] 手提袋问题

[复制链接]

签到天数: 7

该用户今日未签到

8

回帖

10

声望

7

共享银

包装大夫

Rank: 14Rank: 14Rank: 14Rank: 14Rank: 14Rank: 14

积分
158
发表于 2016-10-11 15:40:27 | 显示全部楼层 |阅读模式
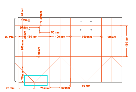
手提袋下面的压线连一起了可以的吗 QQ图片20161011152924.png
包装迷,www.packme.cn--为包装工程师和包装工程专业及包装从业者提供专业的技术讨论平台!(如需添加个性签名请到个人资料里面修改)

签到天数: 1137

该用户今日未签到

232

回帖

12

声望

590

共享银

包装中更

Rank: 66Rank: 66Rank: 66Rank: 66Rank: 66Rank: 66

积分
6804
QQ
发表于 2016-10-11 16:11:27 | 显示全部楼层
75 改成60 就可以了
QQ:259351321
关注我的公众号:纸迷已悟

签到天数: 230

该用户今日未签到

169

回帖

10

声望

114

共享银

包装左更

Rank: 58Rank: 58Rank: 58Rank: 58Rank: 58Rank: 58

积分
4759
QQ
发表于 2016-10-14 15:41:21 | 显示全部楼层
模版使用要灵活
包装迷,www.packme.cn--为包装工程师和包装工程专业及包装从业者提供专业的技术讨论平台!(如需添加个性签名请到个人资料里面修改)
您需要登录后才可以回帖 登录 | 立即注册!

本版积分规则

QQ|小黑屋|包装迷丨PACKME ( 【浙ICP备13020736号-1】 )

GMT+8, 2026-3-21 22:15

快速回复 返回列表